Antillas 408

Antillas 408
Desarrollo inmobiliario (Departamentos)
Entrega Inmediata
Antillas 408
Colonia 
Portales Norte
Benito Juárez
CDMX - Ciudad de México

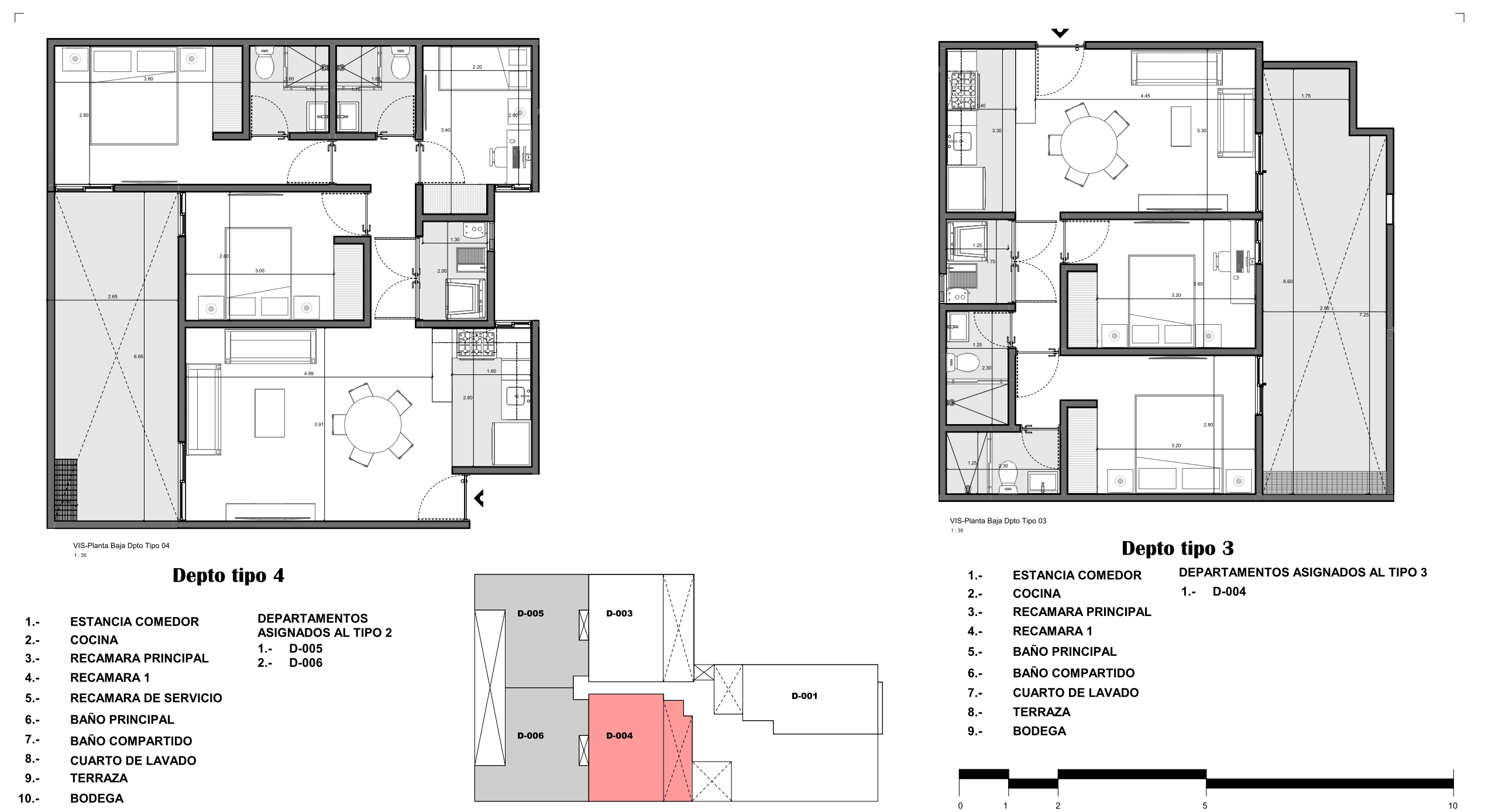
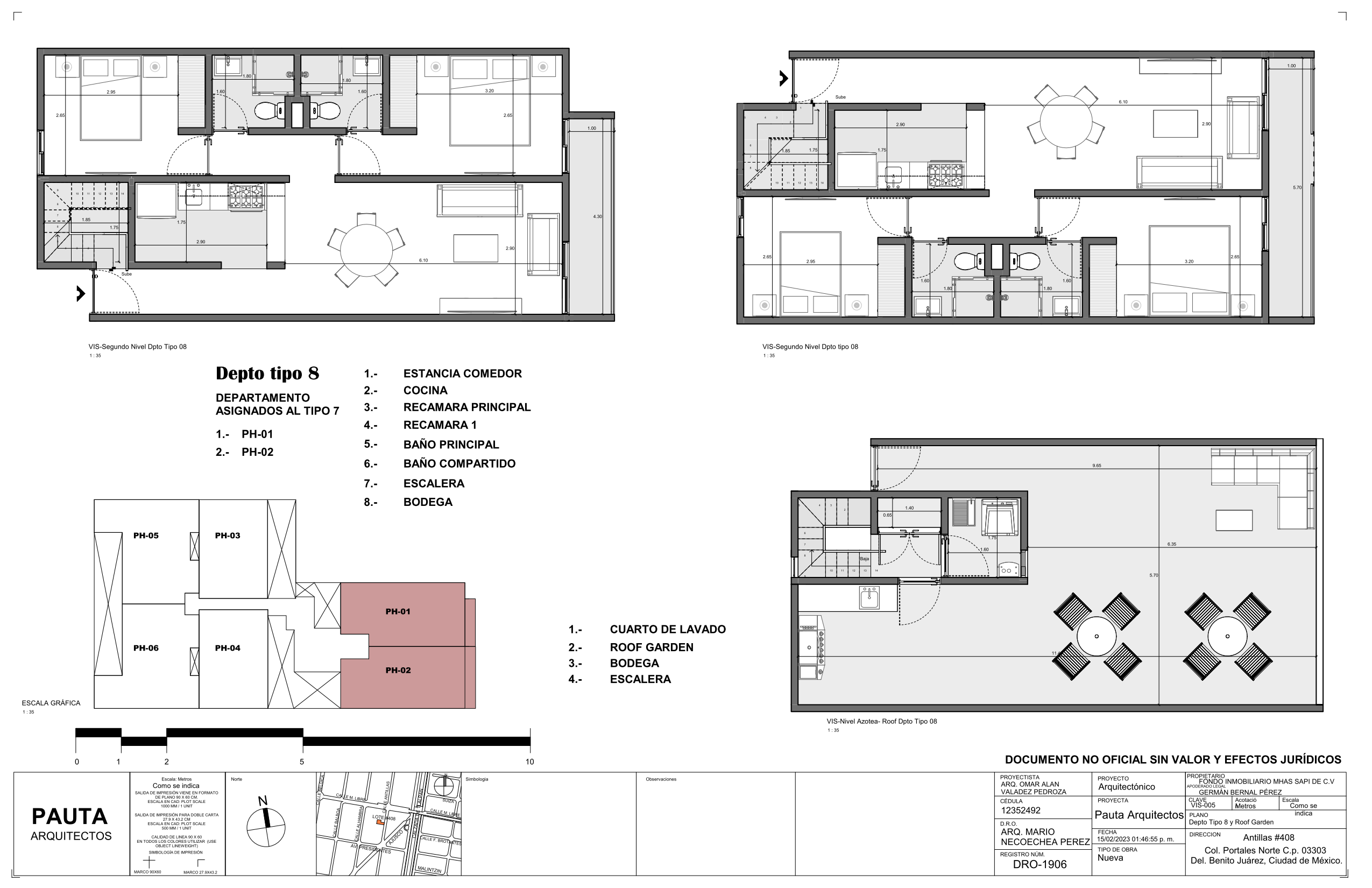
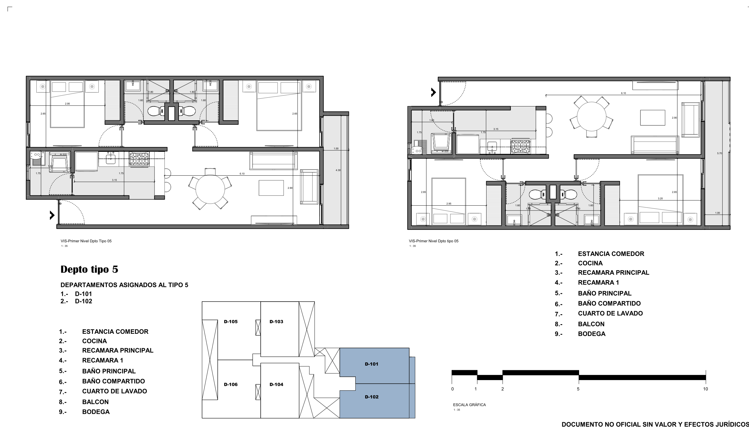
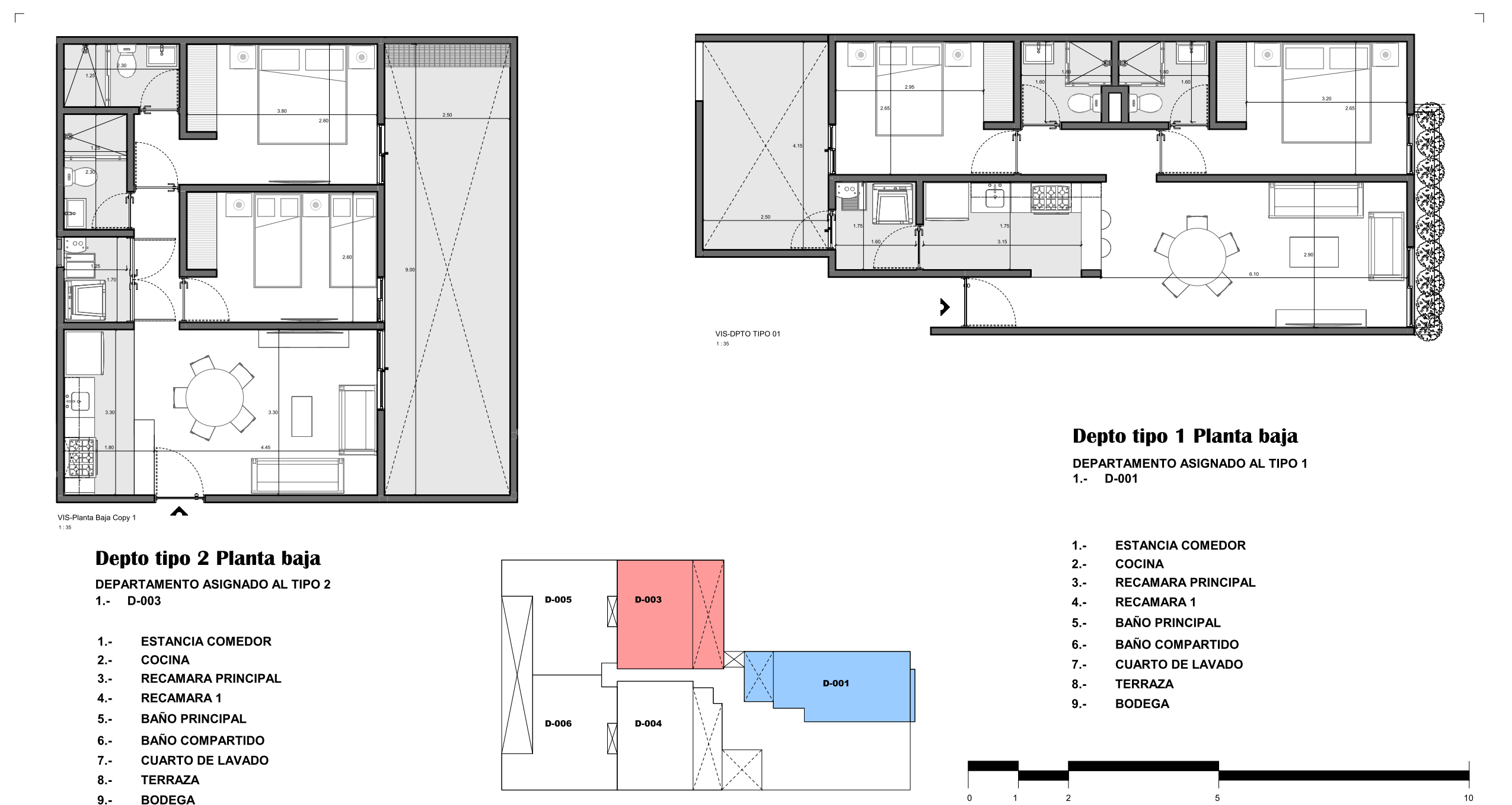
Descripción: 8 casas de 173m2 a 208m2, cuentan con 2 y 3 recámaras con clóset, la principal con vestidor y baño completo, sala-comedor, cocina integral, baños, 1, 2 y 3 cajones de estacionamiento, cuarto de lavado, clóset de blancos, Roof Garden privativo y algunos con balcón, bodega y/o terraza. Caseta de vigilancia con ½ baño. No lo pienses más y ven a conocer tu nuevo hogar.

Desde 
$ 3,763,128
Hasta 
$ 5,857,810
MXN
Crédito Bancario
Pago de Contado
Clave del Desarrollo 
zun
Cocina Equipada
Comedor
Coordina con anticipación tu visita, para que tu asesor inmobiliario pueda cubrir el proceso administrativo que cada desarrolladora le requiere.
Este proyecto es nuevo, los precios de venta se publicaran a la brevedad.
Sala
Consulta la ubicación de esta propiedad en el mapa.

Block Reference 1

call to action (inmueble y desarrollo)

¿Te interesa?

Contáctanos
Imagen de Anónimo
[current-user:field-nombre]
[current-user:field-titulo-area]

like_share_whats

PREGUNTA POR LA DISPONIBILIDAD
UNIDADRBEPRECIO
121180.92$4,196,430.00
321183.15$4,068,296.00
531295.61$4,921,831.00
631195.61$4,618,339.00
10121174.33$4,140,028.00
10221175.86$4,167,924.00
10321162.17$3,763,128.00
10421162.17$3,763,128.00
10531177.63$4,261,886.00
10631177.63$4,261,886.00
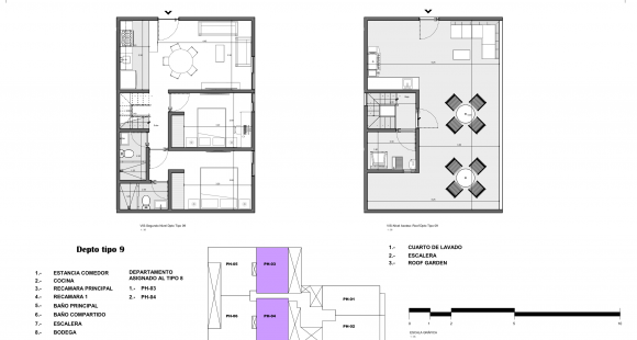
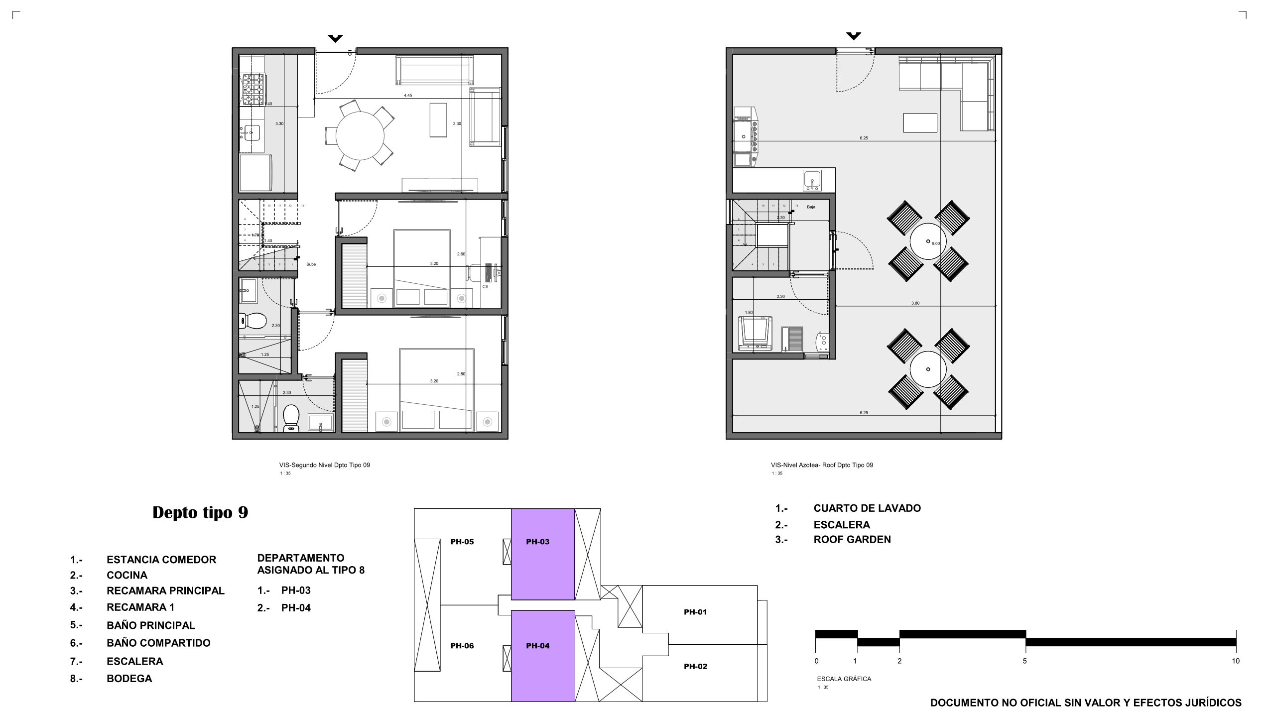
PH1212140$5,579,253.00
PH2213140$5,857,810.00
PH3212122.82$5,023,225.00
PH4212122.59$5,021,386.00
PH5313150.58$5,812,794.00
PH6312150.58$5,675,211.00